
家族構成や暮らし方の変化によって、多くのユーザーに選ばれている平屋。その平屋を進化させた「1.5階建て」が、ハウスメーカーから提案されています。デッドスペースだった屋根裏の利用や、縦に広がった空間を巧みに利用することで生まれる収納、趣味のスペースなど、機能性や利便性、暮らしの豊かさが増す、新しい住まいのカタチです。この記事では「1.5階建て」のさまざまなおすすめポイント、そして注意点も併せてご紹介します。
【編集部より】 1.5階部分の表現は、各社で異なります。(小屋裏、1.5階など) また、本稿でご紹介する「1..5階建て」は、建築確認申請の際、建築地や建物構造によって「平屋」もしくは「2階建て」のいずれかで申請することとなりますので、詳しくは各社にお尋ねください。
目次
「1.5階建て」のおすすめポイント
その1、豊かな空間が生まれる
「1.5階建て」は、これまでの平屋や2階建てにはない、個性的で豊な空間づくりが可能です。たとえば、上階の一部を利用してセカンドリビングや趣味室をつくって非日常を楽しんだり、大屋根が創り出す勾配天井で、リビングを吹き抜けの大空間にすることもできます。また、ペントハウスのような使い勝手で、ゆとりあるルーフバルコニーを用意することもできるのです。
バルコニーでの遊び道具を屋根裏に収納すれば、サッと取り出せますし、楽しみ方が広がります。敷地の広さの関係上、庭が取れない場合でも「1.5階建て」なら自然を感じられる伸び伸び空間が手にできます。周囲からの視線も遮りやすくプライバシーも守られます。
セキスイハイムからの提案

ゆったりくつろげるルーフバルコニーや、セキスイハイムが「コンファティック」と名付ける 小屋裏空間をプラスした、いま注目の平屋スタイルです。

【参考プラン】1.5階があるルーフバルコニーつきの33坪の平屋
1F

1.5F

建物概要
- 3LDK+小屋裏
- 延床面積:109.38m²(約33坪)
住友林業からの提案

勾配天井にすることでLDKが開放的な空間になり、天井に木をあしらうことで木質感あふれるインテリアも実現できるのです。
その2、ライフステージに応じて空間を有効活用
「子どもの成長期には個室を用意してあげたい。でも、将来は夫婦2人の生活になるので、使わない部屋が生まれてしまう…」。平屋か2階建てかの選択において、もっとも悩ましい問題です。
その解決策が「1.5階建て」です。普段の生活は1階で完結させ、子ども部屋は1.5階部分に用意する。将来、子どもが巣立ったときは、収納はもちろん、シアタールームなど趣味の部屋として活用することができます。
ちなみに子どもは階段の上下移動が大好き。家族とちょっと離れた場所に自分だけの空間があることで、毎日ウキウキ楽しく暮らしてくれますよ。一般的な個室と違い、プライバシーは確保しながらも、ルーバーなどの抜け感がある仕切りを採用すれば、気配を感じやすく、上下階での会話も容易なので、家族のつながりも担保できるでしょう。
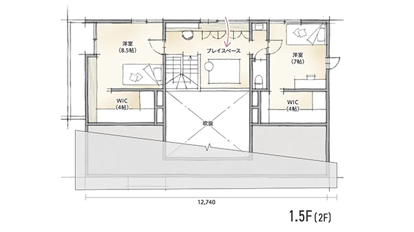
【参考プラン】住友林業 1.5階建て「プラスカイ」
1F

1.5F

建物概要
- 1階床面積:88.71㎡(26.83坪)
- 1.5階(2階)床面積:51.96㎡(15.71坪)
- 延床面積:140.67㎡(42.54坪)
その3、敷地の有効活用
平屋に「6畳の子ども部屋を2つ」を設けた場合と、1.5階建ての上階に「6畳の子ども部屋を2つ」を設けた場合では、必要な敷地面積には大きな差があり、土地の取得費を抑えることができます。
「平屋は建てたいけれど、そこまで広い土地を取得するのは難しい」と諦めていた方にとっても、「1.5階建て」は、その問題を解決してくれる手段となり得ます。「1.5階建て」は、平屋より1階部分を小さくできますので、小さな土地で建築可能です。また、建ぺい率や容積率の制限が厳しい土地でも、建築できる可能性があります。
「1.5階」によって敷地にゆとりが生まれた場合、そこを庭にすることも可能。さらに豊かな暮らしが手にできることでしょう。
【参考プラン】住友林業 1.5階建て「プラスカイ」
平屋とプラスカイで、「LDK・居室・水回り」をそれぞれ同程度の広さにして比較した場合、プラスカイには以下のようなメリットがあります。
- コンパクトな敷地でも計画しやすい1.5階建て
- 土地探しの選択肢が広がります
- 敷地の広さを抑えながら同時に豊かな空間も生まれます
- ゆったりした駐車スペースができ、外構計画も充実
同程度のプラン2つを比較した場合

「平屋」延床面積:32.81坪/敷地面積:約75坪

![]()
「プラスカイ」延床面積:37.56坪/敷地面積:約56坪

その4、収納量を確保

平屋は1階部分に住まいのすべての要素を詰め込みますから、どうしても収納スペースが圧迫されやすくなります。その点、「1.5階建て」の場合、屋根裏を広々とした収納として有効活用することが可能です。
また、2階建ての場合、当然、1階と2階を区切る床が存在しますが、「1.5階建て」なら大屋根にすれば一部にしか床がなく、縦の空間を存分に利用することができます。収納をプラスしても、機能的でゆとりある暮らしが実現可能なのです。
「1.5階建て」の注意点
これまで「1.5階建て」のおすすめポイントをお伝えしてきましたが、注意点もいくつか存在します。末永く安心して、機能的に暮らすためには大切なことですから、しっかりと留意しておきましょう。
その1、耐震性
「1.5階建て」は、総2階建てと比べ、どうしても建物のバランスが悪くなりがちです。適切な耐震設計と強固な耐震構造を有する建築会社を選ぶことが肝要です。
また、「1.5階建て」は近年、注目され始めている提案ですが、やはり施工実績もしっかりとチェックしましょう。どんな建築会社でも、相談すれば「できますよ!」と答えることでしょう。しかし、施工力・ノウハウが蓄積されているとは限りません。
その点、「1.5階建て」の実績はもちろん、建築実績が豊富で、技術力や耐震性能を始めとする住宅性能に強みを持つハウスメーカーなら、安心して依頼することができるでしょう。
その2、将来も見据えた設計に
先にも述べましたが、上階を子ども部屋にした場合、将来的に小屋裏やロフトが「開かずの部屋」になってしまう可能性があります。現在、そして数年間だけでなく、将来も見据えた設計・プランニングすることが大切です。
また、動線設計にも配慮が必要です。上階へのアプローチが悪いと、どうしても足を運ばなくなってしまいます。その場所を何に使い、生活の中でどんなタイミングで利用するのかなど、暮らし方をイメージしながら相談に乗ってくれるベストパートナー(建築会社)を見つけることが重要です。
「1.5階建て」を要チェック!
では実際に、どのような「1.5階建て」の商品があるのか気になるところです。以下に、ハウスメーカー各社の「1.5階建て」ラインナップをご紹介しますので、ぜひ参考にしてください。そして各社にカタログ請求(無料)し、理想の暮らしへの第一歩を踏み出しましょう。
住友林業 プラスカイ
セキスイハイム 1.5階建て平屋
ダイワハウス xevo GranWood(ジーヴォグランウッド)平屋暮らし
>>> ダイワハウス「xevo GranWood 平屋暮らし」を詳しくみる




